Sporting KC Player Lounge

Project overview

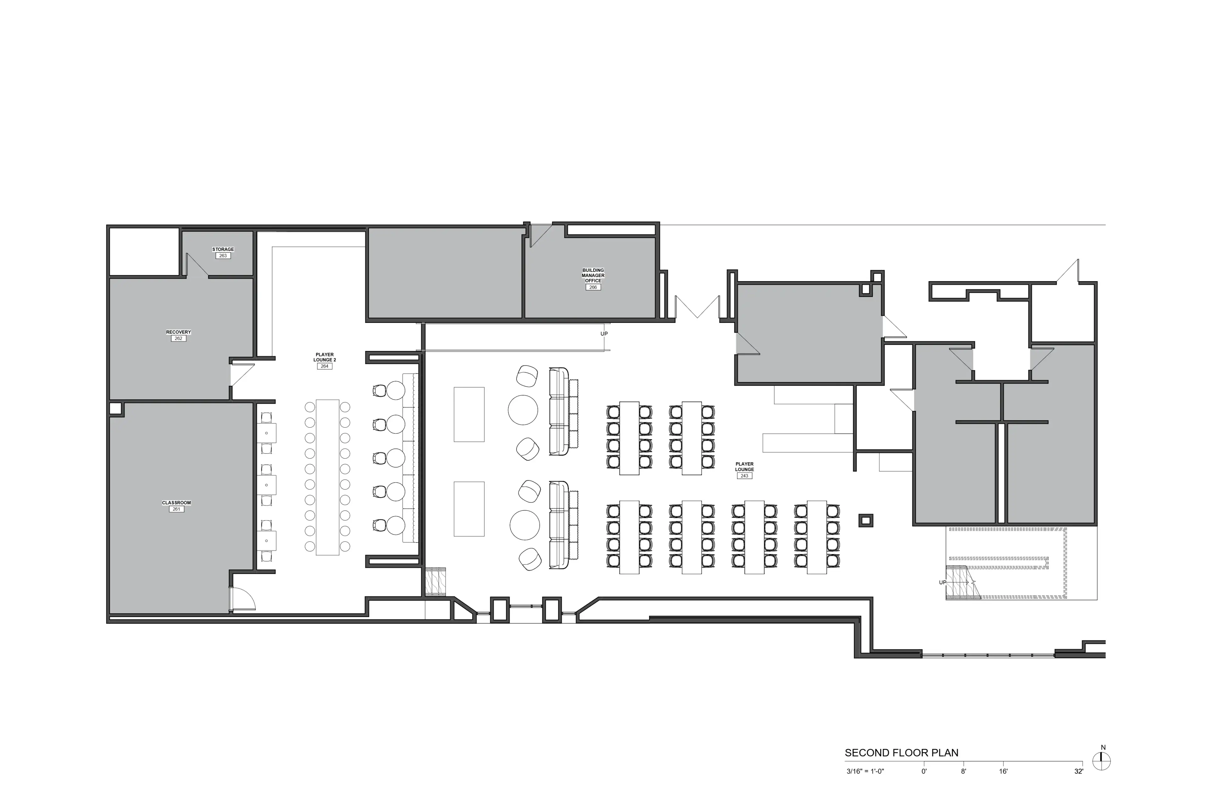
This project involved the renovation of the Sporting KC Player Lounge to create a welcoming coffee shop environment designed for both players and coaches to connect and engage. Located within the team’s Training Facility, the space was reimagined to support daily interactions, casual meetings, and informal team collaboration while enhancing the overall training experience. The design focuses on comfort, functionality, and a sense of community, with thoughtfully selected finishes, lighting, and furnishings that create a warm, inviting atmosphere. This renovation ensures that the lounge is not only a space for relaxation but also a hub for connection, fostering camaraderie and supporting the culture and wellbeing of all players and staff within the facility.

Specifications

Area of site

8,000 SF

Anticipated Completion

2026

Tools used

Revit, SketchUp, Enscape, Bluebeam, Photoshop

Jessica Schuepbach

816.269.0727 | jess.schuepbach@gmail.com

© Jessica Schuepbach, 2026